|
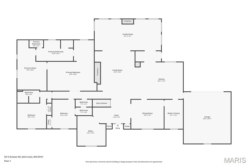
Welcome to 241 South Graeser Road, an exceptional residence within the top-ranked Ladue School District. Completely reimagined and essentially rebuilt in 2023, this home blends modern luxury with timeless design and the privacy of a wooded retreat"”while being within 20 minutes of everywhere in St. Louis. Walls, staircases, and entire spaces were moved or rebuilt to create a refined, functional layout, including the relocation of a full bathroom and the main staircase. The state-of-the-art kitchen is a showpiece featuring one-of-a-kind custom cabinetry, a 5' x 12' classic quartz island with an overhang seating six, an oversized Thermador refrigerator with auto-opening doors, Thermador gas cooktop, Bosch double wall oven with side-opening doors, icemaker, and a second prep sink. The butler's kitchen offers additional custom cabinetry, quartz counters, and another wall oven for effortless entertaining. The master suite is a private sanctuary highlighted by a gas fireplace with a marble surround and custom mantle, a luxurious marble bath with floors and walls in marble, an extended double-sink custom vanity with a granite top, high-end lighting including automatic under-cabinet illumination, a soaking tub, walk-in shower, and a relocated window for natural light. The boutique-style custom closet features a center island with power and charging stations, and a hidden laundry area adds convenience without sacrificing design. This home includes four fireplaces: masonry gas fireplaces with floor-to-ceiling stone and custom mantles in the great room and sunroom, a marble-surround gas fireplace in the master suite, and a sleek biofuel fireplace in the Dark Room. The dining room features a swinging door to the butler's kitchen and a window seat overlooking the expansive front yard"”perfect for everyday meals and holiday celebrations. The Dark Room provides a warm, intimate space with its biofuel fireplace, dramatic lighting, and another inviting window seat. The sunroom impresses with a floor-to-ceiling stone gas fireplace, soaring coffered ceilings, and room for multiple seating or dining areas"”ideal for year-round enjoyment. Every system has been renewed, including all-new wiring, plumbing, and lighting fixtures, plus a new subfloor on the main level. Two new sump pumps with interior drain tile and an exterior French drain, a brand-new 35-year architectural shingle roof, and added attic insulation ensure comfort and efficiency. Exterior upgrades include a new composite deck with hidden walk-up basement access, expanded driveway, new irrigation system, and complete landscaping. Surrounded by 9 acres of woods and fronted by 5.5 acres more, the setting provides extraordinary privacy, with only one window offering a view toward another residence. Despite its seclusion, the location provides exceptional access to major highways, dining, shopping, hospitals, and top-rated schools. With its comprehensive redesign, impeccable craftsmanship, and serene natural surroundings, 241 South Graeser Road offers a level of luxury and livability that is truly one of a kind.
Property Type(s):
Single Family
Last Updated | 10/16/2025 | Tract | Westwood Place |
---|---|---|---|
Year Built | 1974 | Community | 151 - Ladue |
Garage Spaces | 2.0 | County | St. Louis |
SCHOOLS
Elementary School | Spoede Elem. |
---|---|
Jr. High School | Ladue Middle |
High School | Ladue Horton Watkins High |
Additional Details
AIR | Central Air, Electric |
---|---|
AIR CONDITIONING | Yes |
APPLIANCES | Built-In Electric Oven, Built-In Refrigerator, Convection Oven, Dishwasher, Disposal, Double Oven, Electric Oven, Exhaust Fan, Gas Cooktop, Gas Water Heater, Ice Maker, Microwave, Oven, Range Hood, Self Cleaning Oven, Stainless Steel Appliance(s), Vented Exhaust Fan |
AREA | 151 - Ladue |
BASEMENT | Bath/Stubbed, Concrete, Exterior Entry, French Drain, Partially Finished, Sump Pump, Walk-Up Access, Yes |
CONSTRUCTION | Brick |
FIREPLACE | Yes |
GARAGE | Yes |
HEAT | Forced Air, Natural Gas |
HOA DUES | 200|Annually |
INTERIOR | Basement, Bathrooms, Security System, Storage |
LOT | 0.99 acre(s) |
LOT DIMENSIONS | 332/252/184/131 |
PARKING | Attached, Circular Driveway, Garage, Garage Door Opener, Garage Faces Rear, Oversized |
SEWER | Public Sewer |
STORIES | 1 |
STYLE | French Provincial, Ranch, Traditional |
SUBDIVISION | Westwood Place |
TAXES | 10792 |
UTILITIES | Cable Available, Electricity Connected, Natural Gas Connected, Sewer Connected, Water Connected |
WATER | Public |
Location
Contact us about this Property
/ | |
We respect your online privacy and will never spam you. By submitting this form with your telephone number you are consenting for Tracy Ellis to contact you even if your name is on a Federal or State "Do not call List". |
Listing provided by Engel & Voelkers St. Louis

Listings displaying the MARIS logo are courtesy of the participants of Mid America Regional Information Systems Internet Data Exchange.
Disclaimer: Information From Third Parties, Deemed Reliable But Not Verified.
Any use of search facilities of data on this site, other than by a consumer looking to purchase real estate, is prohibited. No part of this search utility may be reproduced, adapted, translated, stored in a retrieval system or transmitted in any form or by any means, electronic, mechanical, photocopying, recording, or otherwise.
This IDX solution is (c) Diverse Solutions 2025.