|
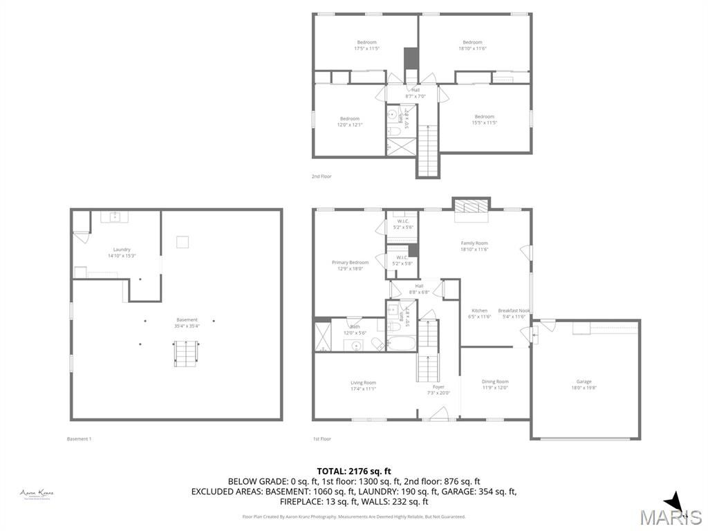
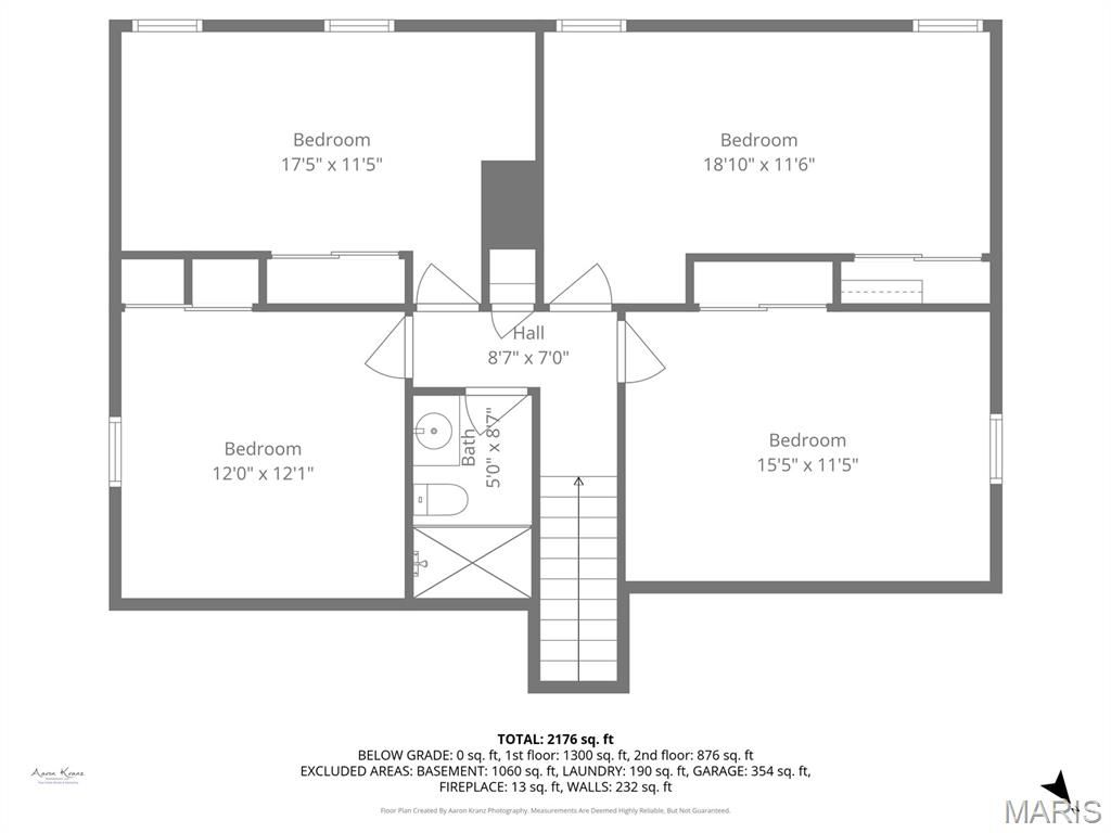
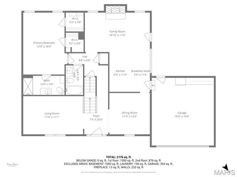
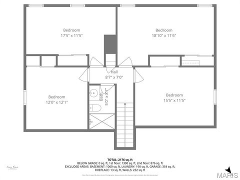
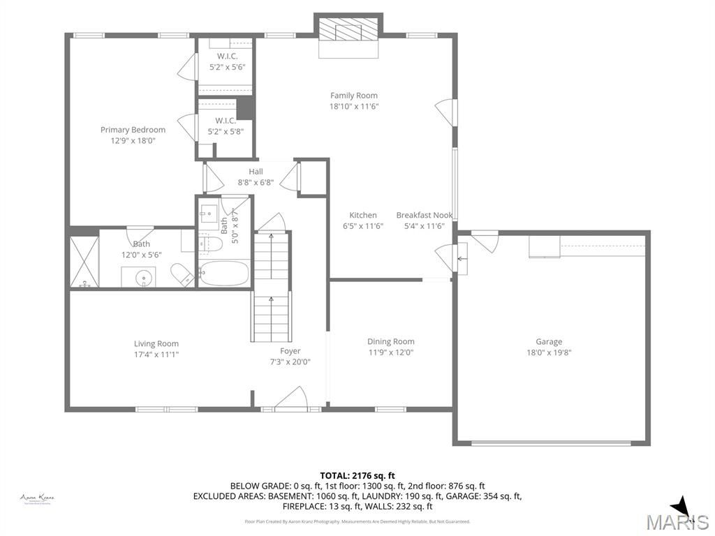
Offered for the first time ever, this one-owner home delivers space you simply don't find in this neighborhood. With 5 bedrooms, 3 full baths, and 2,400 sq ft, the layout is generous, flexible, and ready for fresh ideas. Yes"”it could use some new touches, but the bones, size, and floor plan are the real headline here. The main-floor primary suite features a renovated bath and two massive walk-in closets. Every bedroom is oversized with exceptionally large closets, making storage a non-issue. Multiple living areas and a formal dining room offer versatility for everyday living, entertaining, or working from home. A large unfinished basement provides endless potential, while newer systems and roof offer peace of mind. Outside, enjoy a fenced yard with patio, perfect for pets, play, or summer evenings. An attached two-car garage adds everyday convenience. Located in the Parkway South School District with parochial schools nearby, this is a rare opportunity to bring your vision to a home where the space truly sets it apart.
Property Type(s):
Single Family
| Last Updated | 12/19/2025 | Tract | Westglen South Add |
|---|---|---|---|
| Year Built | 1978 | Community | 169 - Parkway South |
| Garage Spaces | 2.0 | County | St. Louis |
SCHOOLS
| Elementary School | Oak Brook Elem. |
|---|---|
| Jr. High School | Southwest Middle |
| High School | Parkway South High |
Additional Details
| AIR | Ceiling Fan(s), Central Air, Electric |
|---|---|
| AIR CONDITIONING | Yes |
| APPLIANCES | Dishwasher, Disposal, Microwave, Oven, Refrigerator, Washer/Dryer, Water Heater |
| AREA | 169 - Parkway South |
| BASEMENT | Concrete, Full, Sump Pump, Yes |
| CONSTRUCTION | Brick |
| FIREPLACE | Yes |
| GARAGE | Yes |
| HEAT | Forced Air, Natural Gas |
| HOA DUES | 35|Annually |
| LOT | 7588 sq ft |
| LOT DESCRIPTION | Back Yard |
| LOT DIMENSIONS | 68x110 |
| PARKING | Driveway, Garage, Garage Door Opener, Garage Faces Front, Off Street |
| SEWER | Public Sewer |
| STORIES | 2 |
| STYLE | Traditional |
| SUBDIVISION | Westglen South Add |
| TAXES | 4324 |
| UTILITIES | Cable Available, Electricity Connected, Natural Gas Connected, Phone Available, Sewer Connected, Water Connected |
| WATER | Public |
Location
Contact us about this Property
| / | |
| We respect your online privacy and will never spam you. By submitting this form with your telephone number you are consenting for Tracy Ellis to contact you even if your name is on a Federal or State "Do not call List". | |
Listing provided by Real Broker LLC
Listings displaying the MARIS logo are courtesy of the participants of Mid America Regional Information Systems Internet Data Exchange.
Disclaimer: Information From Third Parties, Deemed Reliable But Not Verified.
Any use of search facilities of data on this site, other than by a consumer looking to purchase real estate, is prohibited. No part of this search utility may be reproduced, adapted, translated, stored in a retrieval system or transmitted in any form or by any means, electronic, mechanical, photocopying, recording, or otherwise.
This IDX solution is (c) Diverse Solutions 2026.

