|
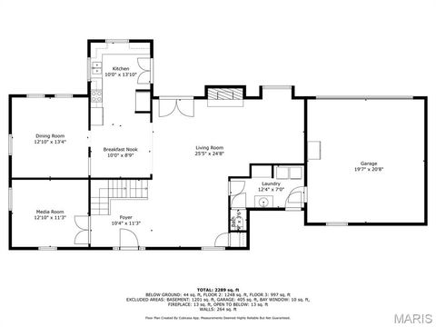
Welcome home to this charming 2-story home ideally located near Town & Country Crossing, offering convenient access to shopping, dining, walking trails, and award-winning Parkway West Schools. From the moment you arrive, you'll appreciate the inviting covered front porch and the home's fantastic curb appeal. Inside, hardwood floors flow throughout the main living areas, complemented by beautiful archway details, newer baseboards, and classic 6-panel interior doors. The main level features a spacious home office, an open staircase, and a cozy wood-burning fireplace"”perfect for everyday living and entertaining. The kitchen is thoughtfully designed with 42" cabinetry, stainless steel appliances, a built-in wall oven and microwave, and plenty of storage. Upstairs, the primary bedroom suite offers a private en-suite bath and a walk-in closet, creating a comfortable retreat. Additional highlights include newer windows, ceiling fans, and main-floor laundry hookups for added convenience. Step outside to enjoy the fenced, level backyard with a covered patio"”ideal for relaxing or hosting gatherings. A rear-entry garage adds functionality while preserving the home's charming exterior. This home combines location, layout, and timeless features"”don't miss your opportunity to make it yours!
Property Type(s):
Single Family
| Last Updated | 1/1/2026 | Tract | Barcelona |
|---|---|---|---|
| Year Built | 1967 | Community | 168 - Parkway West |
| Garage Spaces | 2.0 | County | St. Louis |
SCHOOLS
| Elementary School | Henry Elem. |
|---|---|
| Jr. High School | West Middle |
| High School | Parkway West High |
Additional Details
| AIR | Ceiling Fan(s), Central Air |
|---|---|
| AIR CONDITIONING | Yes |
| AREA | 168 - Parkway West |
| BASEMENT | Full, Yes |
| CONSTRUCTION | Brick, Vinyl Siding |
| FIREPLACE | Yes |
| GARAGE | Yes |
| HEAT | Forced Air, Natural Gas |
| HOA DUES | 200|Annually |
| LOT | 0.287 acre(s) |
| LOT DESCRIPTION | Level |
| SEWER | Public Sewer |
| STORIES | 2 |
| STYLE | Traditional |
| SUBDIVISION | Barcelona |
| TAXES | 4908 |
| UTILITIES | Cable Connected, Electricity Connected, Natural Gas Connected, Sewer Connected, Water Connected |
| WATER | Public |
Location
Contact us about this Property
| / | |
| We respect your online privacy and will never spam you. By submitting this form with your telephone number you are consenting for Tracy Ellis to contact you even if your name is on a Federal or State "Do not call List". | |
Listing provided by RedKey Realty Leaders
Listings displaying the MARIS logo are courtesy of the participants of Mid America Regional Information Systems Internet Data Exchange.
Disclaimer: Information From Third Parties, Deemed Reliable But Not Verified.
Any use of search facilities of data on this site, other than by a consumer looking to purchase real estate, is prohibited. No part of this search utility may be reproduced, adapted, translated, stored in a retrieval system or transmitted in any form or by any means, electronic, mechanical, photocopying, recording, or otherwise.
This IDX solution is (c) Diverse Solutions 2026.

