|
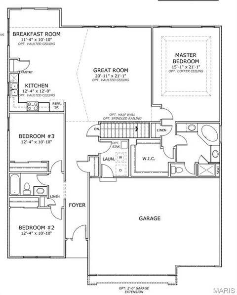
Brand new home never lived in & loaded w over $100,000 of options & custom features! You'll fall in love w the home but also the lot & location. This premium lot offers a w/o lower level overlooking common ground & woods ready for your choice of finish. The location is a hidden gem in Wentzville with a quick easy way to avoid I-70 traffic with easy access to Interstate Dr all the way past Quail Ridge Park to Prospect Rd at I-64.; or Interstate Dr to David Hoekel Pkwy. The floor plan is open & bright with plenty of natural light and tasteful, neutral decor. The cook in this kitchen won't be shut off from the family as it is completely open to the great room & breakfast area with a spacious island as well. However, the master bedroom has privacy from the secondary bedrooms on the opposite side of the home. An oversize 3-car garage with a 2 ft extension to accommodate larger vehicles. The driveway is also extra wide to provide more parking and easier maneuvering. The lawn & landscape are already established. Wentzville offers lots of shopping, restaurants, parks, and a beautiful rec plex & splash station along with top rated schools.
Property Type(s):
Single Family
| Last Updated | 1/6/2026 | Tract | Wildflower Estates |
|---|---|---|---|
| Year Built | 2024 | Community | 418 - Wentzville-North Point |
| Garage Spaces | 3.0 | County | St. Charles |
SCHOOLS
| Elementary School | Journey Elem. |
|---|---|
| Jr. High School | North Point Middle |
| High School | North Point |
Additional Details
| AIR | Ceiling Fan(s), Central Air |
|---|---|
| AIR CONDITIONING | Yes |
| APPLIANCES | Dishwasher, Disposal, Double Oven, Electric Range, Gas Water Heater, Microwave, Refrigerator |
| AREA | 418 - Wentzville-North Point |
| BASEMENT | Bath/Stubbed, Full, Sump Pump, Unfinished, Walk-Out Access, Yes |
| CONSTRUCTION | Brick Veneer, Vinyl Siding |
| FIREPLACE | Yes |
| GARAGE | Yes |
| HEAT | Forced Air, Natural Gas |
| HOA DUES | 1350|Annually |
| INTERIOR | Breakfast Bar, Ceiling Fan(s), Double Vanity, Entrance Foyer, Kitchen Island, Open Floorplan, Pantry, Soaking Tub, Vaulted Ceiling(s), Walk-in Closet(s) |
| LOT | 9182 sq ft |
| LOT DESCRIPTION | Back Yard, Cul-De-Sac |
| SEWER | Public Sewer |
| STORIES | 1 |
| STYLE | Ranch, Traditional |
| SUBDIVISION | Wildflower Estates |
| TAXES | 5289 |
| UTILITIES | Cable Available, Electricity Connected, Underground Utilities, Water Connected |
| WATER | Public |
Location
Contact us about this Property
| / | |
| We respect your online privacy and will never spam you. By submitting this form with your telephone number you are consenting for Tracy Ellis to contact you even if your name is on a Federal or State "Do not call List". | |
Listing provided by Coldwell Banker Realty - Gundaker
Listings displaying the MARIS logo are courtesy of the participants of Mid America Regional Information Systems Internet Data Exchange.
Disclaimer: Information From Third Parties, Deemed Reliable But Not Verified.
Any use of search facilities of data on this site, other than by a consumer looking to purchase real estate, is prohibited. No part of this search utility may be reproduced, adapted, translated, stored in a retrieval system or transmitted in any form or by any means, electronic, mechanical, photocopying, recording, or otherwise.
This IDX solution is (c) Diverse Solutions 2026.

