|
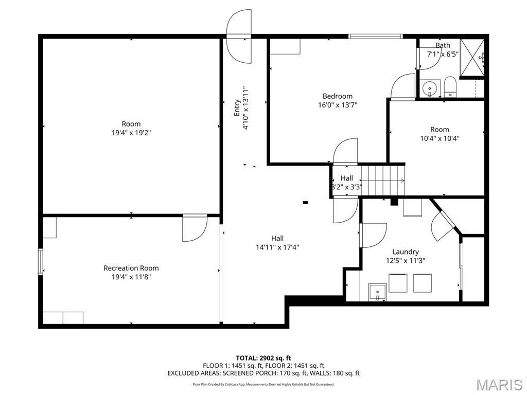
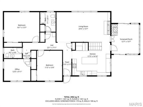
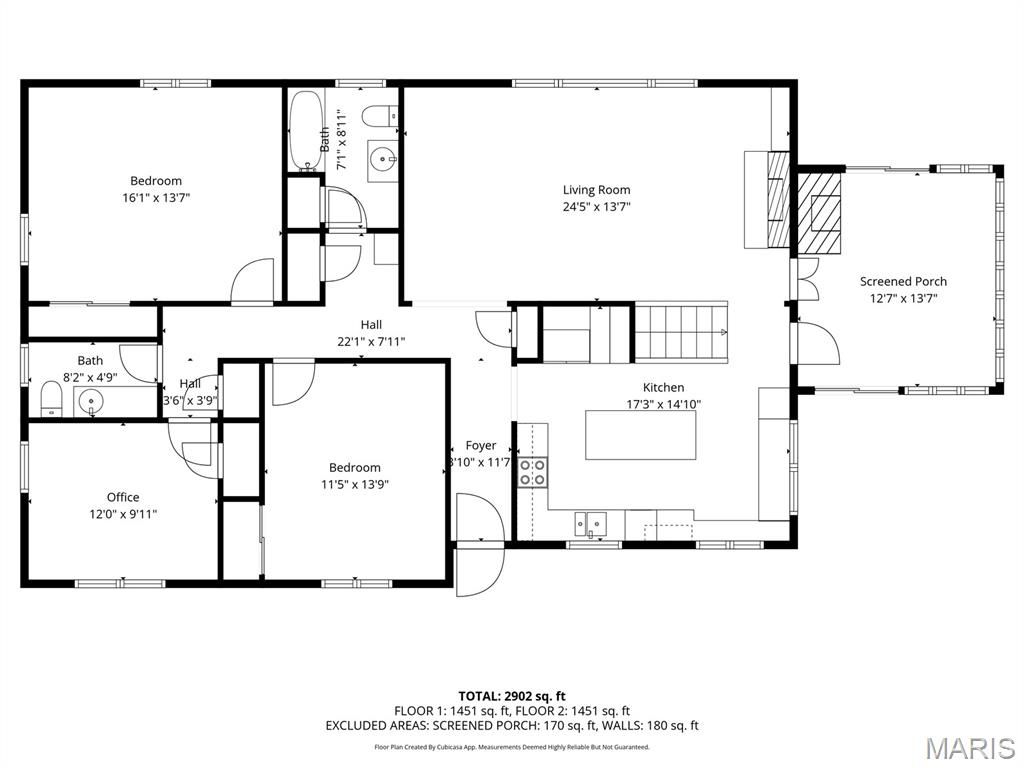
Returning with improvements. Best kept secret in Kirkwood! With 2123 square feet of living space you are bound to love this classic ranch with mid century modern influences in a well established neighborhood where homes rarely become available. This 4 bedroom 2.5 bath home has been lovingly cared for by one family since 1954. Residing on an acre of prime land on a private street, the back yard is an oasis that borders Dee Koestering Park. The updated kitchen is light and bright with modern appliances, quartz counters and abundant storage. Luxuriate around the fully private in-ground pool, and unwind after work in your luminous sunroom, and enjoy a fire. When cold weather sends you inside, simply turn on the gas fireplace in the living room for a toasty experience overlooking the woods where wildlife frolics. The main floor offers 3 large, bright bedrooms, 1.5 bathrooms, and a large living room with space for a dining table. The sunroom rounds out the main floor and has a garden feel that is both private and inviting. Downstairs guests will love their private suite with full bath and ample storage. A bonus room and tuck under garage completes the lower level. Located in a quiet corner of Kirkwood with easy access to charming shops, restaurants, and award-winning schools as well as major highways. This home combines location, comfort, convenience, and classic Kirkwood character in a very rare opportunity for the next homeowner. Please see the floorplan drawings for room dimensions
Property Type(s):
Single Family
| Last Updated | 2/3/2026 | Tract | Signal Hills 1 |
|---|---|---|---|
| Year Built | 1950 | Community | 196 - Kirkwood |
| Garage Spaces | 2.0 | County | St. Louis |
SCHOOLS
| Elementary School | George R. Robinson Elem. |
|---|---|
| Jr. High School | Nipher Middle |
| High School | Kirkwood Sr. High |
Additional Details
| AIR | Central Air |
|---|---|
| AIR CONDITIONING | Yes |
| AREA | 196 - Kirkwood |
| BASEMENT | Bath/Stubbed, Full, Partially Finished, Walk-Out Access, Yes |
| CONSTRUCTION | Brick Veneer |
| FIREPLACE | Yes |
| GARAGE | Yes |
| HEAT | Forced Air |
| INTERIOR | Basement, Bathrooms, Pool |
| LOT | 1 acre(s) |
| LOT DESCRIPTION | Back Yard, Cul-De-Sac, Front Yard, Landscaped, Many Trees, Native Plants, Private, Wooded |
| SEWER | Septic Tank |
| STORIES | 1 |
| STYLE | Ranch, Traditional |
| SUBDIVISION | Signal Hills 1 |
| UTILITIES | Cable Connected, Electricity Connected, Natural Gas Connected |
| WATER | Public |
Location
Contact us about this Property
| / | |
| We respect your online privacy and will never spam you. By submitting this form with your telephone number you are consenting for Tracy Ellis to contact you even if your name is on a Federal or State "Do not call List". | |
Listing provided by RedKey Realty Leaders
Listings displaying the MARIS logo are courtesy of the participants of Mid America Regional Information Systems Internet Data Exchange.
Disclaimer: Information From Third Parties, Deemed Reliable But Not Verified.
Any use of search facilities of data on this site, other than by a consumer looking to purchase real estate, is prohibited. No part of this search utility may be reproduced, adapted, translated, stored in a retrieval system or transmitted in any form or by any means, electronic, mechanical, photocopying, recording, or otherwise.
This IDX solution is (c) Diverse Solutions 2026.

