|
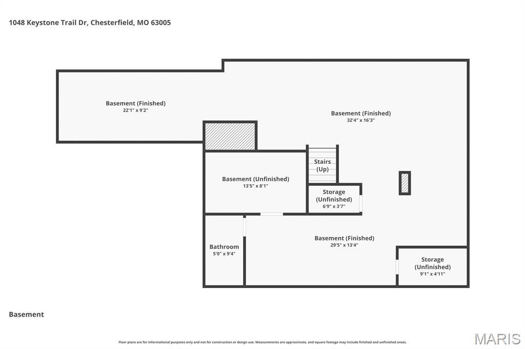
Welcome home to this stunning 4 bed, 3.5 bath, 3-car garage retreat nestled in the heart of Wildwood and served by the highly acclaimed Rockwood School District. From the moment you step inside, you're greeted by a grand entryway featuring elegant marble floors, soaring ceilings, and an immediate sense of openness. Just off the front entry you will find a sizeable coat closet and a well-appointed sitting room and formal dining room which create the perfect spaces for entertaining or quiet conversation. Rich hardwood floors flow throughout the main level, while oversized windows flood the entire home with natural light. The main living area features an inviting wood-burning fireplace, charming bay window, and a dedicated media closet to keep things functional as well as comfortable. The beautifully updated chef's kitchen is designed to impress - featuring quartz countertops, a marble backsplash, gas range, stainless steel appliances, walk in pantry, and abundant custom cabinetry. The main level also includes a powder room and a laundry/mudroom just off the garage, blending everyday functionality with thoughtful design. Whether hosting a gathering or enjoying a quiet morning coffee, this space effortlessly blends function and style. Step outside to the expansive deck overlooking a level .52-acre beautifully manicured backyard, featuring a hardscape apron fire pit that extends from the driveway into the side yard to enjoy during gatherings and relaxing evenings - a rare find that offers privacy, serenity, and room to breathe. Upstairs you will find the spacious primary suite offers a true retreat with a walk-in closet and a beautifully updated bathroom featuring a double vanity, soaking tub, and a custom tile shower that adds a luxurious, spa-like feel. Three additional bedrooms, a separate linen closet for added storage, and a well-appointed guest bath round off the second floor. The walk-out lower level offers a spacious rec room along with a full bath, creating a versatile area adaptable to your needs - whether that's a media space, home office, playroom, or workout area - with direct access to the backyard patio for seamless indoor-outdoor living. Recent updates include a brand-new roof and gutters (2026), fresh paint throughout (2024), sump pump (2025) and durable LVP flooring in the basement (2024) - giving you peace of mind and modern appeal. Ideally located with quick access to major highways and just minutes from Chesterfield Valley, The District, Downtown Chesterfield, outlet malls, and scenic Greenway trails, this home offers the perfect balance of tranquility and convenience. This is more than a house - it's refined comfort, space to grow, and the lifestyle you've been waiting for.
Property Type(s):
Single Family
| Last Updated | 4/2/2026 | Tract | Wildhorse Village |
|---|---|---|---|
| Year Built | 1995 | Community | 347 - Lafayette |
| Garage Spaces | 3.0 | County | St. Louis |
SCHOOLS
| Elementary School | Chesterfield Elem. |
|---|---|
| Jr. High School | Rockwood Valley Middle |
| High School | Lafayette Sr. High |
Additional Details
| AIR | Central Air, Electric |
|---|---|
| AIR CONDITIONING | Yes |
| AMENITIES | Snow Removal |
| APPLIANCES | Stainless Steel Appliance(s) |
| AREA | 347 - Lafayette |
| BASEMENT | Walk-Out Access, Yes |
| CONSTRUCTION | Brick |
| FIREPLACE | Yes |
| GARAGE | Yes |
| HEAT | Forced Air, Natural Gas |
| HOA DUES | 1100|Annually |
| INTERIOR | Double Vanity, Entrance Foyer, Soaking Tub, Walk-in Closet(s) |
| LOT | 0.52 acre(s) |
| LOT DESCRIPTION | Level |
| LOT DIMENSIONS | 0.52 acres |
| PARKING | Additional Parking, Attached, Garage Faces Side, Oversized |
| SEWER | Public Sewer |
| STORIES | 2 |
| STYLE | Traditional |
| SUBDIVISION | Wildhorse Village |
| TAXES | 7660 |
| WATER | Public |
Location
Contact us about this Property
| / | |
| We respect your online privacy and will never spam you. By submitting this form with your telephone number you are consenting for Tracy Ellis to contact you even if your name is on a Federal or State "Do not call List". | |
Listing provided by EXP Realty, LLC
Listings displaying the MARIS logo are courtesy of the participants of Mid America Regional Information Systems Internet Data Exchange.
Disclaimer: Information From Third Parties, Deemed Reliable But Not Verified.
Any use of search facilities of data on this site, other than by a consumer looking to purchase real estate, is prohibited. No part of this search utility may be reproduced, adapted, translated, stored in a retrieval system or transmitted in any form or by any means, electronic, mechanical, photocopying, recording, or otherwise.
This IDX solution is (c) Diverse Solutions 2026.

